賃貸戸建:田辺市古尾
| 物件種目 | 賃貸アパート |
| 所在地 | 田辺市古尾 |
| 交通 | 銀座バス停まで徒歩約16分、JR紀伊田辺駅までバス乗車約4分 |
| 賃料 | 4.8万円(ペット飼育の場合5万円) |
| 共益費 | トイレ汲み取り費用実費 |
| 敷金 | 4.8万円(ペット飼育の場合5万円) |
| 礼金 | 4.8万円(ペット飼育の場合5万円) |
| 敷引 | 退去時ハウスクリーニング費用必要です。 |
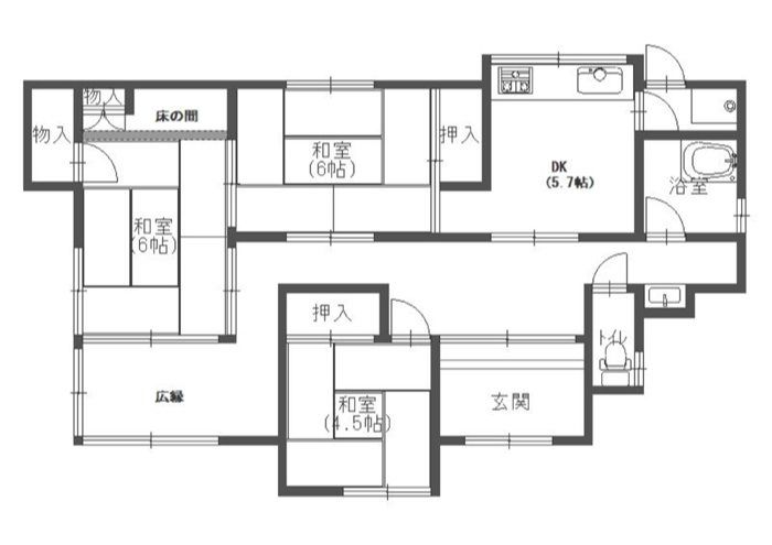
| 間取り | 3DK(DK5.7、和6、和6、和4.5、洗面所、バス・トイレ別) |
| 駐車場 | 近隣にあり、1台4,000円、2台目3,000円 |
| 構造 | 木造瓦葺平家建 |
| 専有面積 | 72.72㎡ |
| 築年月 | 1960年月不詳 |
| 現況 | 入居中 |
| 入居時期 | 2025年12月中旬予定 |
| 契約期間 | 2年 |
| その他費用 | 家財保険の加入が必要です。 家賃保証の加入が必要です。 保証料:賃料の77%、審査手数料:個人1,100円、法人2,200円(初回のみ) 更新料:年額5,000円、口座振替手数料:月額440円 保証会社:アークシステムテクノロジーズ株式会社 |
| 設備 | エアコン1台、バス・トイレ別(温水洗浄暖房便座、簡易水洗)、流し台、洗面台、照明器具、給湯、シャワー、ガスコンロ、室内洗濯機置場 |
| オススメポイント | 室内リフォーム済でキレイ! ペット相談可! 庭が広いので家庭菜園もできます! スーパー松源田辺店まで徒歩約5分!(約400m) 古民家を生かしてリフォームしてるので和モダンで落ち着きます! |
| 取引態様 | 仲介(仲介手数料が必要です) |
| 情報更新日 | 2025年11月25日 |
| 情報有効期限 | 2026年5月25日 |
・本サイトに掲載中の物件は情報更新日時点の情報であり、内容が変更になる場合があります。あらかじめご了承下さい。
・掲載中の物件が商談中もしくは成約済みとなっている場合があります。詳しくはお問い合わせ下さい。
・海抜高さ、周辺施設までの距離等は、インターネットでの検索によるものであり、その正確性を保証するものではありません。
・現況と図面が異なる場合は、現況優先とさせて頂きます。
・ご成約の際には当社規定の仲介手数料と、それにかかる消費税が別途必要になります。
はるな不動産
〒646-0028 和歌山県田辺市高雄1丁目1番15号
URL:https://www.haruna-fudousan.com
E-mail:info@haruna-fudousan.com
TEL:0739-20-6933 FAX:0739-20-6934