賃貸アパート:コーポ五月 203号室
| 物件種目 | 賃貸アパート |
| 所在地 | 西牟婁郡上富田町岩田 コーポ五月 203号室 |
| 交通 | 紀伊岩田バス停まで徒歩約6分、JR朝来駅までバス乗車約6分 |
| 賃料 | 5万円 |
| 共益費 | 込み |
| 敷金 | 10万円 |
| 礼金 | 5万円 |
| 敷引 | 退去時ハウスクリーニング費用必要です。 |
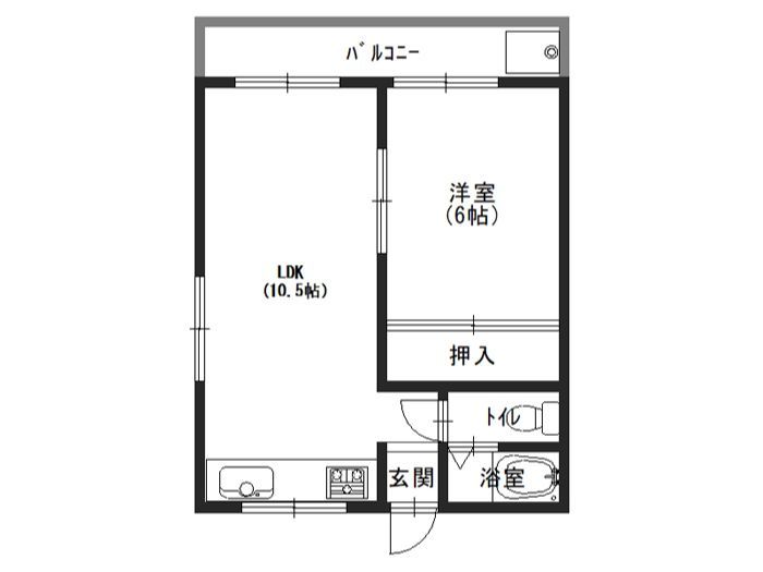
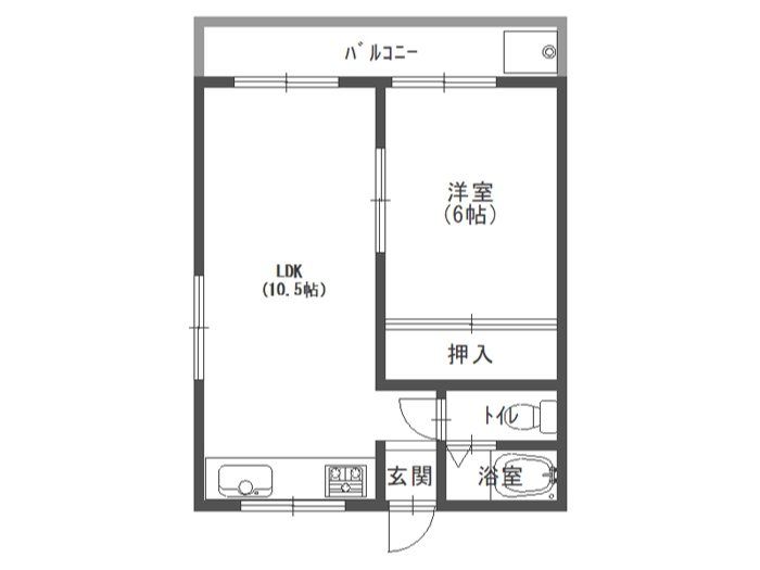
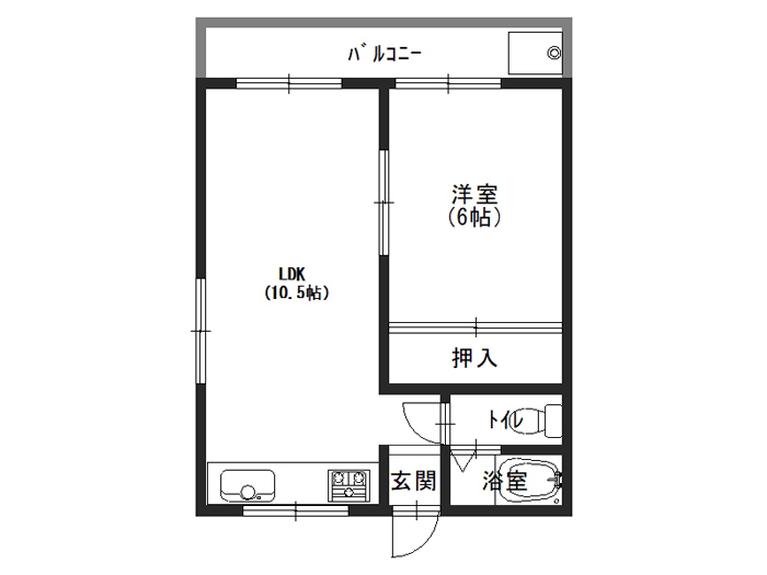
| 間取り | 1LDK(LDK10.5、洋6、バス・トイレ別) |
| 駐車場 | 1台込み 2台目 +3,000円(駐車場不要の場合、賃料3,000円引き) |
| 構造 | 鉄骨造2階建(所在階2階) |
| 専有面積 | 33.6㎡ |
| 築年月 | 1979年1月 |
| 現況 | 空室 |
| 入居時期 | 即時 |
| 契約期間 | 2年 |
| その他費用 | 家財保険加入必要です。 |
| オススメポイント | 2025年6月リフォーム済!(流し台入替、床・クロス張替) 角部屋! |
| 設備 | 照明器具、流し台、バス・トイレ別、浴室シャワー、給湯、地デジ対応、BSアンテナ |
| 取引態様 | 仲介(仲介手数料が必要です) |
| 情報更新日 | 2026年2月15日 |
| 情報有効期限 | 2026年8月15日 |
・本サイトに掲載中の物件は情報更新日時点の情報であり、内容が変更になる場合があります。あらかじめご了承下さい。
・掲載中の物件が商談中もしくは成約済みとなっている場合があります。詳しくはお問い合わせ下さい。
・海抜高さ、周辺施設までの距離等は、インターネットでの検索によるものであり、その正確性を保証するものではありません。
・現況と図面が異なる場合は、現況優先とさせていただきます。
・ご成約の際には当社規定の仲介手数料と、それにかかる消費税が別途必要になります。
はるな不動産
〒646-0028 和歌山県田辺市高雄1丁目1番15号
URL:https://www.haruna-fudousan.com
E-mail:info@haruna-fudousan.com
TEL:0739-20-6933 FAX:0739-20-6934