賃貸アパート:Hills 105号室
| 物件種目 | 賃貸アパート |
| 所在地 | 田辺市朝日ヶ丘 Hills 105号室 |
| 交通 | 上宝地谷バス停まで徒歩約2分、JR紀伊田辺駅までバス乗車約11分 |
| 賃料 | 3.5万円 |
| 共益費 | 込み |
| 敷金 | 無 |
| 礼金 | 7万円 |
| 敷引 | 無 |
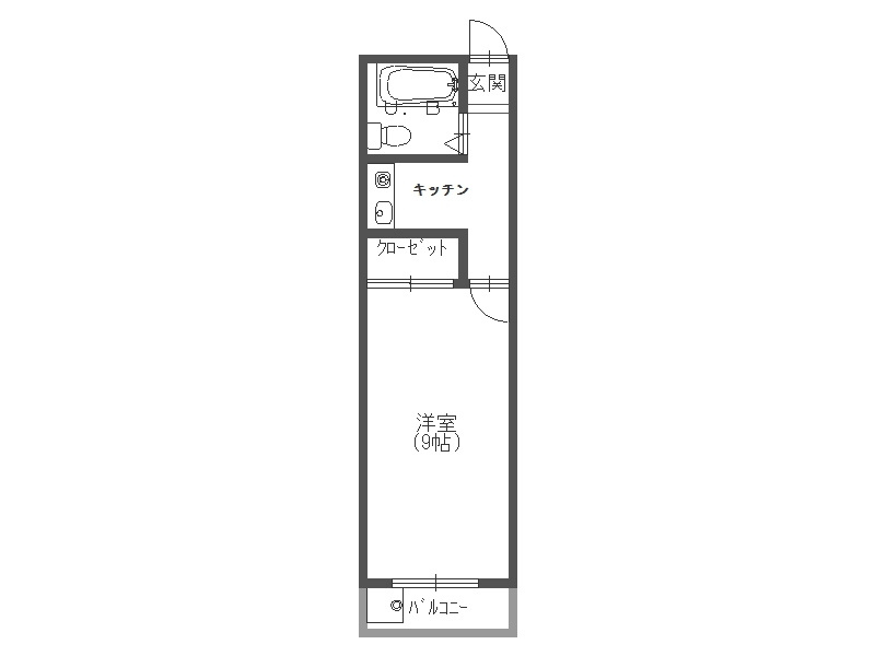
| 間取り | 1R(洋9、バス・トイレユニット) |
| 駐車場 | 有、1台5,500円 |
| 構造 | 鉄骨造3階建(所在階1階) |
| 専有面積 | 約28.56㎡ |
| 築年月 | 1988年3月 |
| 現況 | 空室 |
| 入居時期 | 即時 |
| 契約期間 | 2年 |
| 備考 | 間取り図は左右反転となります。 |
| 設備 | エアコン1台、バス・トイレユニット、洗面台、流し台、照明器具、給湯、シャワー |
| その他費用 | 家財保険の加入が必要です。 契約時、ハウスクリーニング代金が必要です(38,500円)。但し、汚れがひどい場合は退去時に別途追加費用実費負担となります。 家賃保証の加入が必要です。 保証料:賃料の77%、審査手数料:個人1,100円、法人2,200円(契約時のみ) 更新料:年額5,000円、口座振替手数料:月額440円 保証会社:アークシステムテクノロジーズ株式会社 1年未満の解約の場合、賃料の2ヶ月分の違約金が発生します。 |
| 取引態様 | 仲介(仲介手数料が必要です) |
| 情報更新日 | 2026年3月5日 |
| 情報有効期限 | 2026年9月5日 |
・本サイトに掲載中の物件は情報更新日時点の情報であり、内容が変更になる場合があります。あらかじめご了承下さい。
・掲載中の物件が商談中もしくは成約済みとなっている場合があります。詳しくはお問い合わせ下さい。
・海抜高さ、周辺施設までの距離等は、インターネットでの検索によるものであり、その正確性を保証するものではありません。
・現況と図面が異なる場合は、現況優先とさせて頂きます。
・ご成約の際には当社規定の仲介手数料と、それにかかる消費税が別途必要になります。
はるな不動産
〒646-0028 和歌山県田辺市高雄1丁目1番15号
URL:https://www.haruna-fudousan.com
E-mail:info@haruna-fudousan.com
TEL:0739-20-6933 FAX:0739-20-6934