売中古住宅:田辺市中辺路町近露
| 物件種目 | 売中古住宅 |
| 所在地 | 田辺市中辺路町近露 |
| 交通 | 柿平バス停まで徒歩約4分、JR紀伊田辺駅までバス乗車約61分 |
| 価格 | 1,800万円 |
| 土地面積 | 856.84㎡(259.19坪) うち宅地611.84㎡(185.08坪)、雑種地245㎡(74.11坪) |
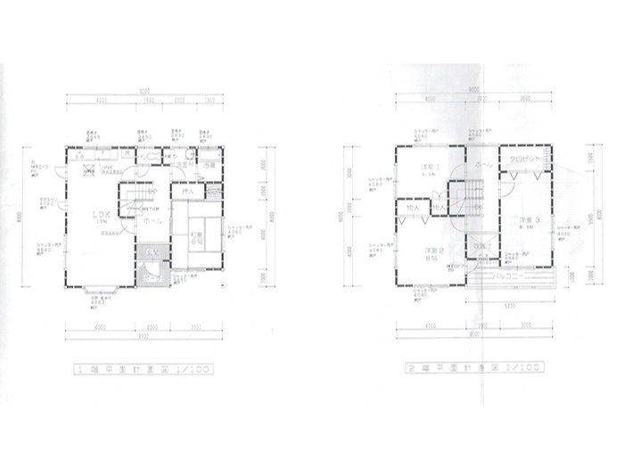
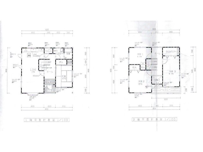
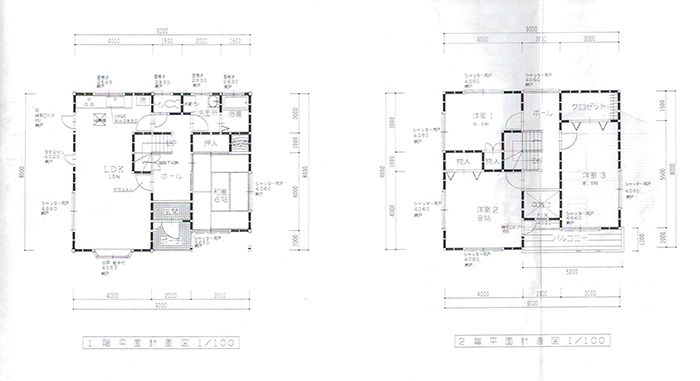
| 建物延床面積 | 母屋:73.28㎡(22.16坪) 物置:15.00㎡(4.53坪) |
| 間取り | 2LDK+物置 |
| 築年月 | 2007年12月 |
| 現況 | 空家 |
| 構造 | 母屋:木造瓦葺平家建 物置:木造ルーフィング葺平家建 |
| 駐車場 | 有4~5台 |
| 取引態様 | 仲介(仲介手数料が必要です) |
| オススメポイント | 熊野古道のど真ん中! 物置と広いドッグラン付き! 家庭菜園も可! 家電・ベッド・芝刈り機・草刈り機・キックボード・BBQセット付き! 室内キレイ! リフォーム必要なし! Aコープ熊野古道ちかつゆ店まで徒歩約7分!(約500m) ゲストハウス・別荘・田舎暮らしにいかがですか? |
| 備考 | 地目が一部雑種地の為、宅地に地目変更が必要な場合は買主様負担です。 |
| 情報更新日 | 2026年4月9日 |
| 情報有効期限 | 2026年10月9日 |
・本サイトに掲載中の物件は情報更新日時点の情報であり、内容が変更になる場合があります。あらかじめご了承下さい。
・掲載中の物件が商談中もしくは成約済みとなっている場合があります。詳しくはお問い合わせ下さい。
・海抜高さ、周辺施設までの距離等は、インターネットでの検索によるものであり、その正確性を保証するものではありません。
・現況と図面が異なる場合は、現況優先とさせて頂きます。
・ご成約の際には当社規定の仲介手数料と、それにかかる消費税が別途必要になります。
はるな不動産
〒646-0028 和歌山県田辺市高雄1丁目1番15号
URL:https://www.haruna-fudousan.com
E-mail:info@haruna-fudousan.com
TEL:0739-20-6933 FAX:0739-20-6934