売中古住宅:田辺市本宮町上切原
| 物件種目 | 売中古住宅 |
| 所在地 | 田辺市本宮町上切原 |
| 交通 | JR紀伊田辺駅まで車で約1時間23分 |
| 価格 | 350万円 |
| 土地面積 | 宅地 388.63㎡(117.56坪) 畑 263㎡(79.55坪) 合計 651.63㎡(197.11坪) |
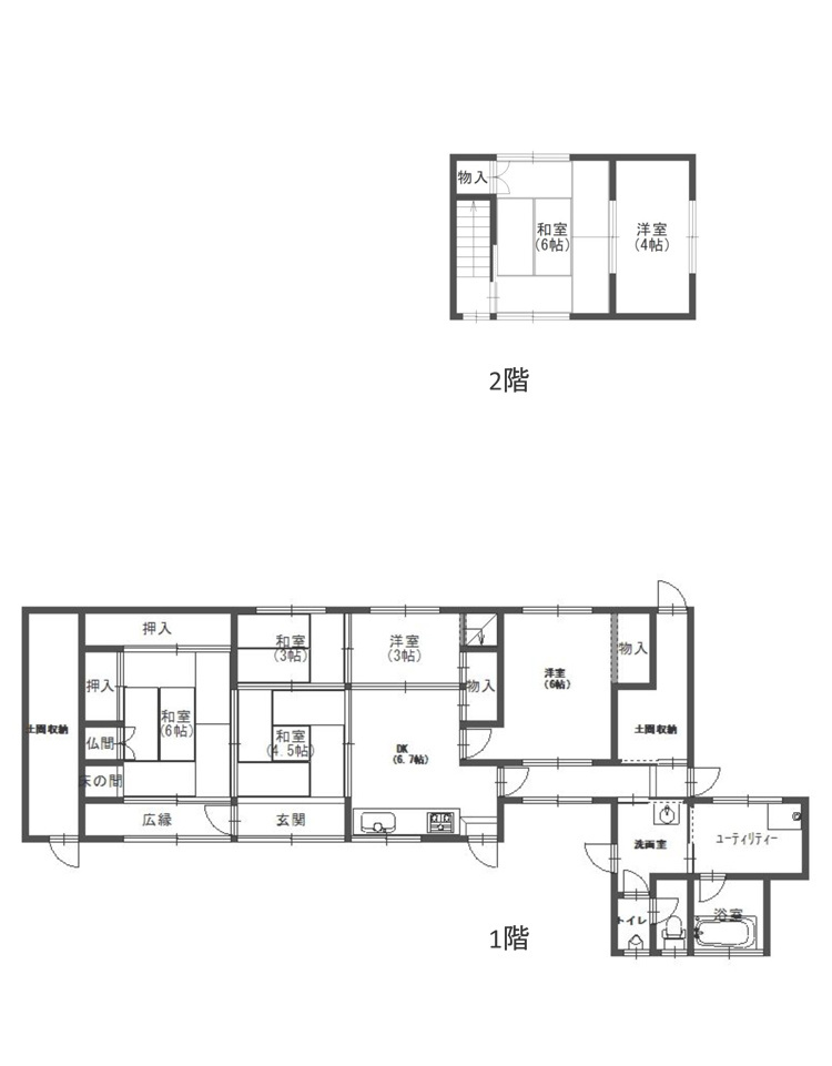
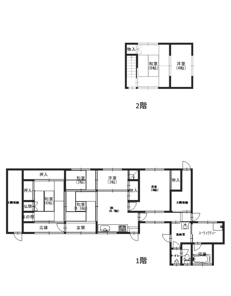
| 建物延床面積 | 142.91㎡(43.23坪) 1階 117.74㎡ 2階 25.17㎡ |
| 間取り | 7DK |
| 築年月 | 不詳(1983年、1992年月不詳増築) |
| 現況 | 空家 |
| 構造 | 木造かわらぶき2階建 |
| 駐車場 | 有3~4台 |
| 都市計画 | 区域外 |
| 用途地域 | 無指定 |
| 法令上の制限 | 景観法、農地法、宅地造成及び特定盛土等規制法 |
| 備考 | 一部農地の為、農地法3条又は5条申請が必要です。 公衆用道路(63㎡)、田(1151㎡)を無償で付けての販売となります。 |
| オススメポイント | 土地広し! 農地付きなので、家庭菜園しながら田舎暮らしにいかがですか? 部屋数も多いので、シェアハウスとしても適しています! |
| 取引態様 | 仲介(仲介手数料が必要です) |
| 情報更新日 | 2025年7月27日 |
| 情報有効期限 | 2026年1月27日 |
・本サイトに掲載中の物件は情報更新日時点の情報であり、内容が変更になる場合があります。あらかじめご了承下さい。
・掲載中の物件が商談中もしくは成約済みとなっている場合があります。詳しくはお問い合わせ下さい。
・海抜高さ、周辺施設までの距離等は、インターネットでの検索によるものであり、その正確性を保証するものではありません。
・現況と図面が異なる場合は、現況優先とさせて頂きます。
・ご成約の際には当社規定の仲介手数料と、それにかかる消費税が別途必要になります。
はるな不動産
〒646-0028 和歌山県田辺市高雄1丁目1番15号
URL:https://www.haruna-fudousan.com
E-mail:info@haruna-fudousan.com
TEL:0739-20-6933 FAX:0739-20-6934